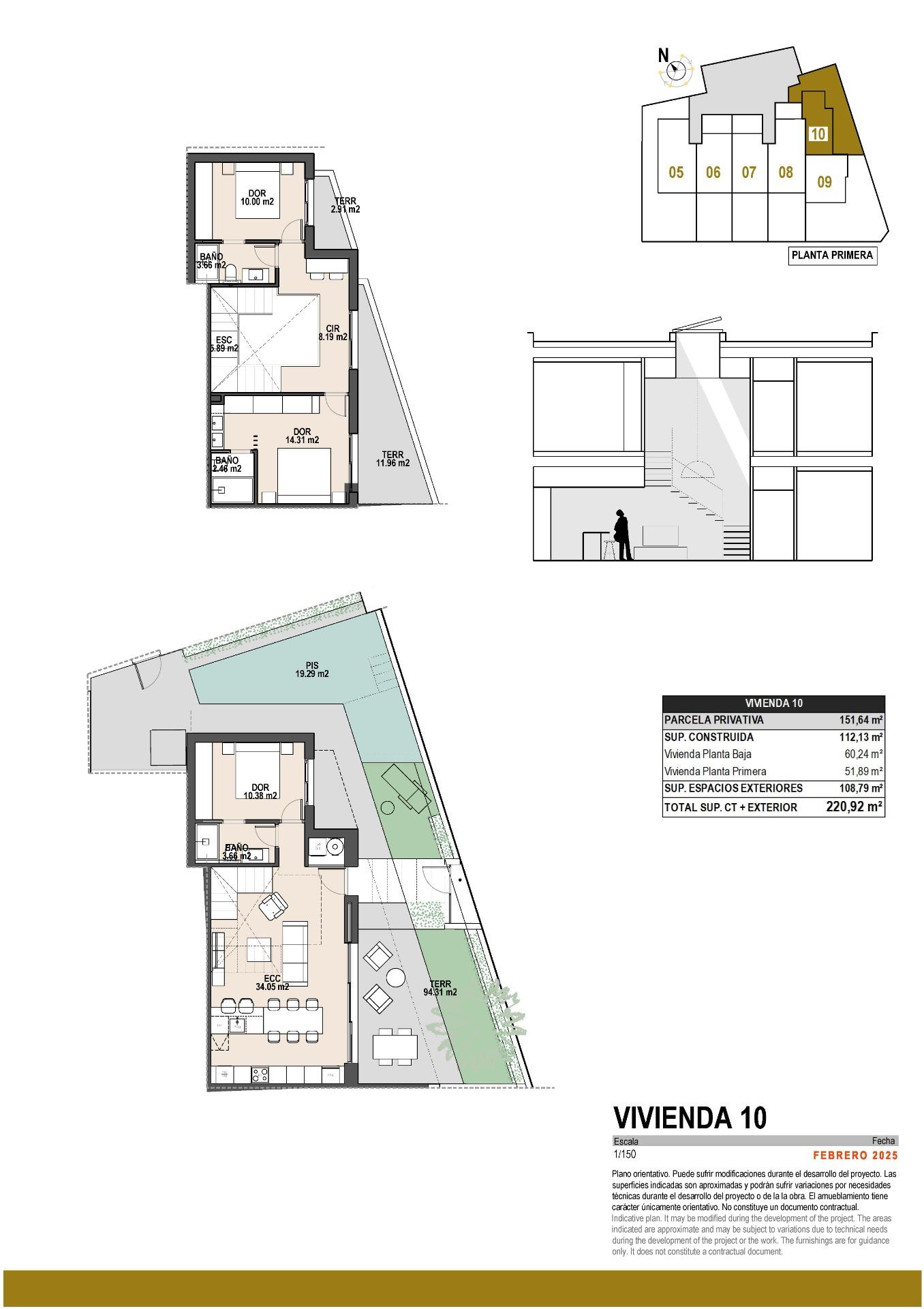
Key Features
- 3 bedrooms
- 3 bathrooms
- 112 m2 build
- 94 m2 plot
- Swimming Pool: Yes
Property Description
Boutique Development of New Build Homes with Private Pools in Pilar de la HoradadaExclusive Residential in a Prime Costa Blanca LocationDiscover this boutique new-build development of just 10 exclusive homes in Pilar de la Horadada, a charming coastal town in the south of the Costa Blanca. Located on the outskirts of town, this modern project offers open views towards green park areas while being only 2 km from the Mediterranean beaches of Torre de la Horadada. Enjoy the convenience of having all essential services within walking distance, including supermarkets, restaurants, banks, schools and health services.Choice of Layouts with Private Outdoor SpacesThis new development offers a variety of 2- and 3-bedroom layouts to suit different needs and lifestyles:Ground floor houses feature a private garden, pool with beach-style area and fully landscaped exteriors with automatic irrigation.Top floor houses boast a private solarium with summer kitchen, pergola, outdoor toilet and private pool with built-in jacuzzi, plus a dedicated bicycle storage room at ground floor.Semi-detached villas offer generous indoor and outdoor space with a private garden and pool, ideal for family living or long stays.All homes include a private parking space.Premium Features and High-Quality FinishesDesigned with comfort, efficiency and style in mind, all homes come equipped with:Ducted air conditioning fully installedElectric shutters and reinforced front doorsLED lighting package for indoor and outdoor areasFitted kitchens with BOSCH or SIEMENS appliancesStylish bathrooms with underfloor heating, mirrors, vanity units and shower screensModern design that maximizes natural light and functionalityThese thoughtfully designed homes deliver a seamless blend of indoor comfort and outdoor living, perfect for enjoying the warm Mediterranean climate all year round.Key distances:Beaches: 2 kmLo Romero Golf Course: 6 kmDos Mares Shopping Centre (San Javier): 10 kmZenia Boulevard Shopping Centre (Orihuela Costa): 12 kmMurcia International Airport: 40 kmAlicante Airport: 70 kmIdeal for Living or InvestmentWith limited availability and a privileged location, this new development in Pilar de la Horadada represents a fantastic opportunity for both permanent living and investment. Whether you’re seeking a holiday home, a retirement retreat or a rental property, these modern homes offer everything you need.Contact us today to secure your new home on the Costa Blanca.
Established in 2003 we have helped 1000's of overseas buyers realise their Spanish dream. Specialising in Property for Sale in Spain, we can help with organising your NIE Number application, opening a bank account, conveyancing, power of attorney and currency exchange. So if you are looking to buy Property in Spain get in touch with us today.
*** VIEWING AVAILABLE BY APPOINTMENT 365 DAYS PER YEAR - CONTACT US TO BOOK YOUR VIEWING TODAY ***
If you would like to discuss finance options and payment plans please don't hesistate to get in touch. For legal enquiries please email leah@sunworldlawyers.es, for finance options please email adam@sunworld.es
Reserve this Property
In order to reserve this property we require a 5000€ deposit to be paid and a Reservation Contract will need to be signed. Once received the property will be taken off the market and the sales process will begin.
Please note the 5000€ will be held in our client holding account until the Vendor has accepted the offer and both parties have signed a Sales Contract. After that time the deposit will be sent to the vendors lawyers and will become the initial payment of the agreed Purchase Price
To pay the deposit securely you can use the PayPal link below. Alternatively, you can contact us and we can organise a card payment or transfer.






































