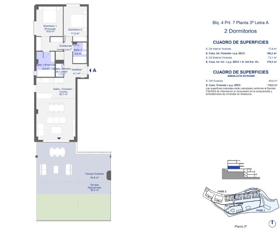
Key Features
- 2 bedrooms
- 2 bathrooms
- 115 m2 build
- 0 m2 plot
- Swimming Pool: Yes
Property Description
Exclusive New Build Residential Development in La Alcaidesa with Sea and Golf ViewsModern homes in a privileged location on the Costa del SolDiscover this new residential complex in La Alcaidesa, a quiet and picturesque enclave by the Mediterranean Sea. This exclusive development offers 144 new-build homes with 2 and 3 bedrooms, all with parking space and storage room included. Located on the front line of the prestigious Alcaidesa golf course and just 1.5 km from the beach, this residential complex combines nature, sea and contemporary lifestyle in a setting of total privacy.Elegant design, modern comfort and unobstructed viewsThe homes have been designed to maximise comfort and energy efficiency, with a south-facing orientation that provides abundant natural light and spectacular open views of the sea from the upper floors. All properties include a fitted and equipped kitchen with appliances, a reinforced entrance door, ducted air conditioning and an AA energy rating that guarantees high energy savings and respect for the environment.Communal areas that enhance your lifestyleThis complex has been designed to offer much more than just a home. Its extensive communal areas include:Communal swimming pool with salt chlorination systemGardens with native vegetation and nature trailsFully equipped gym and outdoor meditation areaSpa, community lounge with co-working spaceBeach volleyball court and children’s area for the whole family to enjoyNatural surroundings and access to key amenitiesLocated in one of the most exclusive areas of the Costa del Sol, La Alcaidesa offers unrivalled natural surroundings and excellent connections:La Alcaidesa beach: 1.5 kmAlcaidesa golf course: 1 kmGibraltar: 17 kmSotogrande: 10 kmGibraltar Airport: 22 kmMalaga-Costa del Sol Airport: 115 kmSotogrande Marina: 12 kmShopping centre in La Línea de la Concepción: 15 kmMake your dream home a reality in La AlcaidesaLive surrounded by nature, golf and the sea in a private community with all amenities. Contact us today for more information or to schedule a visit to this exceptional residential development in La Alcaidesa.
Established in 2003 we have helped 1000's of overseas buyers realise their Spanish dream. Specialising in Property for Sale in Spain, we can help with organising your NIE Number application, opening a bank account, conveyancing, power of attorney and currency exchange. So if you are looking to buy Property in Spain get in touch with us today.
*** VIEWING AVAILABLE BY APPOINTMENT 365 DAYS PER YEAR - CONTACT US TO BOOK YOUR VIEWING TODAY ***
If you would like to discuss finance options and payment plans please don't hesistate to get in touch. For legal enquiries please email leah@sunworldlawyers.es, for finance options please email adam@sunworld.es
Reserve this Property
In order to reserve this property we require a 5000€ deposit to be paid and a Reservation Contract will need to be signed. Once received the property will be taken off the market and the sales process will begin.
Please note the 5000€ will be held in our client holding account until the Vendor has accepted the offer and both parties have signed a Sales Contract. After that time the deposit will be sent to the vendors lawyers and will become the initial payment of the agreed Purchase Price
To pay the deposit securely you can use the PayPal link below. Alternatively, you can contact us and we can organise a card payment or transfer.





















